Пандус откидной, на стойках, с противоскользящим покрытием, из рифлёного алюминия, 3 мм
Основные характеристики:
Артикул: 10125-5-1
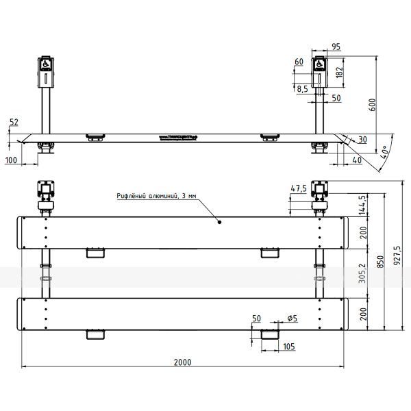
Размер (ВxШxГ): 90x850x2000 мм
Вес: 16 кг
Тип: пандус
Материал: АМг2Н2, сталь
Параметры упакованного товара:
Размер (ВxШxГ): 200x380x2110 мм
Вес: 16.4 кг
Откидной пандус на стойках подходит для адаптации объектов, на которых невозможна установка стационарного устройства из-за ограниченности пространства — в подъездах жилых домов, на узких лестничных маршах.
Данная конструкция состоит из двух алюминиевых профилей, соединяющихся тремя поперечными направляющими, которые крепятся к стойкам. На пандус без труда можно заехать с обеих сторон, в разложенном виде устройство опирается на все ступени лестничного пролета, равномерно распределяя нагрузку. Максимальная нагрузка приспособления равна 250 кг.
При установке пандуса не затрагивается стена, так как опорой механизма являются стойки, которые монтируются к ступеням, а затем сам пандус присоединяется к стойкам. Когда устройство не используется, его легко зафиксировать на магнитные держатели, закрепленные на стойках. Изделие плотно прилегает к стойкам, не загораживая проход по лестничному пролету.
Для удобства складывания-раскладывания конструкции обе рамы, имеющие универсальную ширину 20 см, оборудуются откидными ручками. А для безопасности съезда/заезда колесных устройств бортики рам пандуса имеют высоту 5 см.
Корпус приспособления, складное колено и стойки изготавливаются из стали марки Ст3, а рамы пандуса — из толстого рифлёного алюминия, обладающего противоскользящими свойствами.
Для контраста с подстилающей поверхностью на пластинах съезда/заезда пандуса и корпусах магнитных держателей присутствуют вставки желтого цвета, позволяющие сразу заметить конструкцию людям, испытывающим проблемы со зрением.
Скачать заявку на изготовление индивидуальной откидной аппарели
Аналогичные товары
Сопутствующие товары
Отзывы покупателей
Вы недавно смотрели








Небольшой вес, конструкцию легко адаптировать, в сложенном виде экономит место у лестницы, невысокая стоимость.